- SLUŽBY
- KÚRENIE
- FOTOVOLTIKA
- VODA
- KANALIZÁCIA
- KOMÍNY A DYMOVODY
- CENTRÁLNE VYSÁVAČE
- KLIMATIZÁCIA
- REKUPERÁCIA
- ZÁHRADNÉ KRBY
- ZÁLOŽNÉ ZDROJE A ELEKTROCENTRÁLY
- Úvod
- Krby, krbové vložky
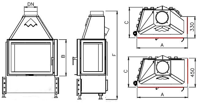
- Krbová vložka CHOPOK 2R90/330 LD 450
Krbová vložka CHOPOK 2R90/330 LD 450
- Kompletné špecifikácie
- Komentáre 0
- Na stiahnutie
Krbová vložka CHOPOK 2R90/330 LD 450informujte sa u nás2 623,59 €/ ks2 133,00 € bez DPH
Teplovzdušné krbové vložky typu CHOPOK sú vo výkonových radách 670, 730, 780, 840, 900. Sú určené na spaľovanie dreva a drevených brikiet spôsobom roštovým alebo bezroštovým. Zabudovávajú sa teplovzdušným spôsobom do krbov rôznych štýlov a tvarov. Vysoký výkon ich predurčuje na doplnkový a záložný zdroj tepla, ktorý umocňuje atmosféru Vášho domova. Široký výber krbových vložiek Vám umožňuje vybrať si taký model, ktorý určite splní Vaše požiadavky a očakávania.
Konštrukcia krbovej vložky je vytvorená oceľovým zvarencom, vhodne doplneným liatinovými prvkami, povrchovo upravená žiaruvzdorným lakom. Spaľovacia komora je vyložená šamotovými tvarovkami, obsahuje liatinový rošt a vnútornú nádobu na popol. Krbové dvierka sú presklenené keramickým žiaruvzdorným sklom s dimenziou 750°C.
Krbovú vložku je možné vybaviť príslušenstvom, ktoré zvyšuje ich estetickú úroveň a praktické nasadenie:
- Druhý plášť
- Vonkajší popolník
- Znížené ohnisko
- Akumačné kamene závesné
- Segmentové ohnisko
- Segmentové ohnisko čierne
- Sklo Reflex
- Krycí rámik
Krbovú vložku s voliteľným príslušenstvom vám radi naceníme na mieru.
Prednosti krbových vložiek:
- výškovo nastaviteľná poloha pomocou rektifikačných skrutiek
- vysoká čistota skla pri horení
- predpríprava pre automatickú reguláciu horenia
- pieskovanie rámu dvierok pred povrchovou úpravou
- možná automatická regulácia horenia
- prehĺbené ohnisko / estetické horenie
- primárny a sekundárny vzduch / trojstupňové horenie
- odťahová komínová klapka stupňovito regulovateľná
- možnosť prívodu vzduchu na spaľovanie
z externého prostredia




.jpg)

