- SLUŽBY
- KÚRENIE
- FOTOVOLTIKA
- VODA
- KANALIZÁCIA
- KOMÍNY A DYMOVODY
- CENTRÁLNE VYSÁVAČE
- KLIMATIZÁCIA
- REKUPERÁCIA
- ZÁHRADNÉ KRBY
- ZÁLOŽNÉ ZDROJE A ELEKTROCENTRÁLY
- Úvod
- Kanalizácia a ČOV
- ČOV EK-S4 v nádobe na dúchadlo
ČOV EK-S4 v nádobe na dúchadlo
- Doprava ZADARMO
- Kompletné špecifikácie
- Komentáre 0
- Na stiahnutie
ČOV EK-S4 v nádobe na dúchadloSkladom1 399,35 €/ ks1 137,68 € bez DPH
Čistiareň odpadových vôd EK-S je technologický celok pozostávajúci zo samonosnej plastovej nádrže (kontajneru) so vstavanými čistiacimi zónami, anaeróbnym dávkovacím filtrom a systémom recirkulácie a odbúravania kalu a plastovej nádoby pre uloženie kompresora a elektromagnetického ventilu.
Čistiarne EK-S spĺňajú s rezervou podmienky ČSN EN 12566-3+A2:2014. Dajú sa teda umiestniť do bezprostrednej blízkosti obydlia a vyčistenú vodu je možné vypúšťať do kanalizácie, recipientov alebo použiť k zavlažovaniu.
Vo vodohospodársky významných oblastiach je pri zaradení ďalšieho stupňa čistenia (napr. zemný filter), možné dosiahnuť celkovú účinnosť čistenia v hodnote BSK5 až 99,5%.
Prebytočný kal je potreba odoberať podľa zaťaženia ČOV. Kal je vhodný na kompostovanie.
Prekysličovanie vody v ČOV je trvalé, stále. Vychádza z dúchadla, ktoré je riadené elektromagnetickým ventilom.
Prevedenie ( krytie ) dúchadla a ventilu odpovedá prostrediu podľa STN 330300.
Využitie
- Rodinné domy
- Bytové domy
- Objekty na miestach bez možnosti napojenia sa na verejnú kanalizáciu
Výhody
- Výborný pomer cena / výkon
- Jednoduchá údržba
- Nízke prevádzkové náklady viď porovnanie
| Typové označenie | EK-S4/I-I NPB |
| Počet osôb | 1-6 |
| Denný prietok vody | 0,2-0,6m3 |
| Denný prínos znečistenia | 0,06-0,25kg BSK5 |
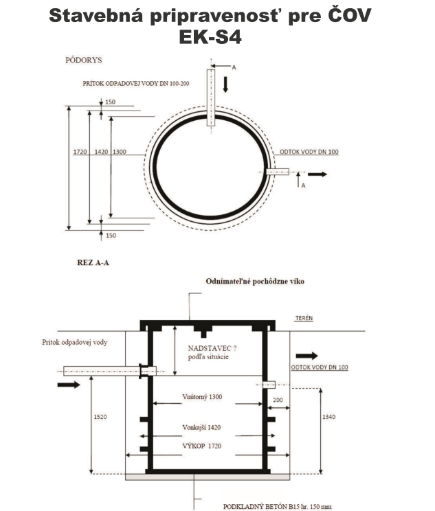
| Priemer nádrže | 1300mm |
| Výška | 1500mm |
| Hmotnosť | 120kg |
| Príkon | 39-61W |
| Napájacie napätie | 230V |
| Materiál | Polypropylén |






.jpg)

